Einfamilienhaus Schwerin Wiedemar
Beschreibung
Nachdem Familie F. in Wiedemar ihr Traumgrundstück gefunden hatte, begann endlich die spannende Phase der Hausplanung. Von Anfang an stand fest, dass es unser Einfamilienhaus Schwerin werden sollte. Lediglich minimale Änderungen am Grundriss und bei den Fenstern wurden vorgenommen – ansonsten war das Haus bereits perfekt so, wie es ist.
Dieses Projekt zeigt, dass manchmal weniger mehr ist: Mit wenigen Anpassungen wurde ein Zuhause geschaffen, das in seiner ursprünglichen Form besticht und den Wünschen der Familie F. entspricht.
Besonderheiten
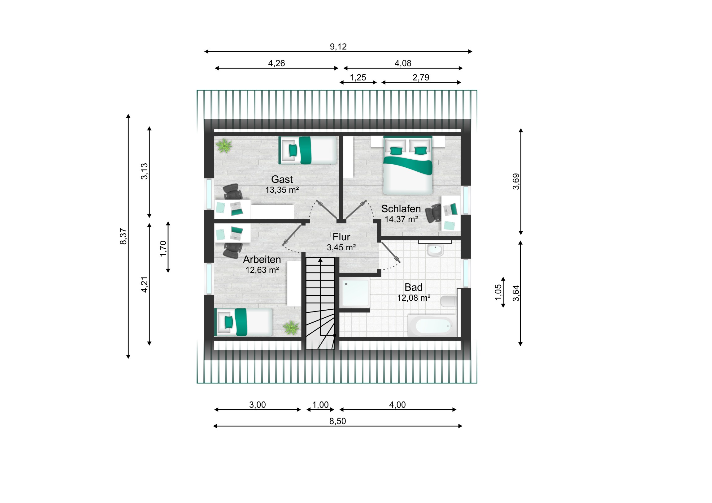
- offene Wangentreppe
- Änderung der Fensterelemente
- minimale Anpassungen vom Grundriss
Eckdaten im Überblick
- Baujahr: 2023
- Nettoraumfläche: 119 m²
- Baustoff: Thermo 2+ mit verstärkter Dämmung
Einfamilienhaus Schwerin
Ein Zuhause zum Wohlfühlen: Lichtdurchflutete Räume und moderne Architektur für Ihre Wohnträume.
Einfamilienhaus SchwerinIhre Nachricht an uns
Nutzen Sie unser Kontaktformular, um uns schnell und einfach eine Nachricht zu senden.
Wir freuen uns über Ihr Interesse und auf Ihre Nachricht, die wir im Rahmen unserer Sprechzeiten schnellstmöglich beantworten werden!