Einfamilienhaus Coburg in Barleben

Beschreibung

Familie F. hat sich für unser Einfamilienhaus Coburg entschieden und dafür ein wunderschönes Grundstück im Neubaugebiet Barleben ausgewählt. Im Erdgeschoss wurden einige individuelle Anpassungen vorgenommen: Die Küche ist als geschlossener Raum geplant, lässt sich jedoch über eine praktische Schiebetür direkt mit dem Wohn- und Essbereich verbinden. Das großzügige Gästezimmer sowie das komfortable Gästebad mit Dusche bieten Besuchern einen angenehmen Rückzugsort.

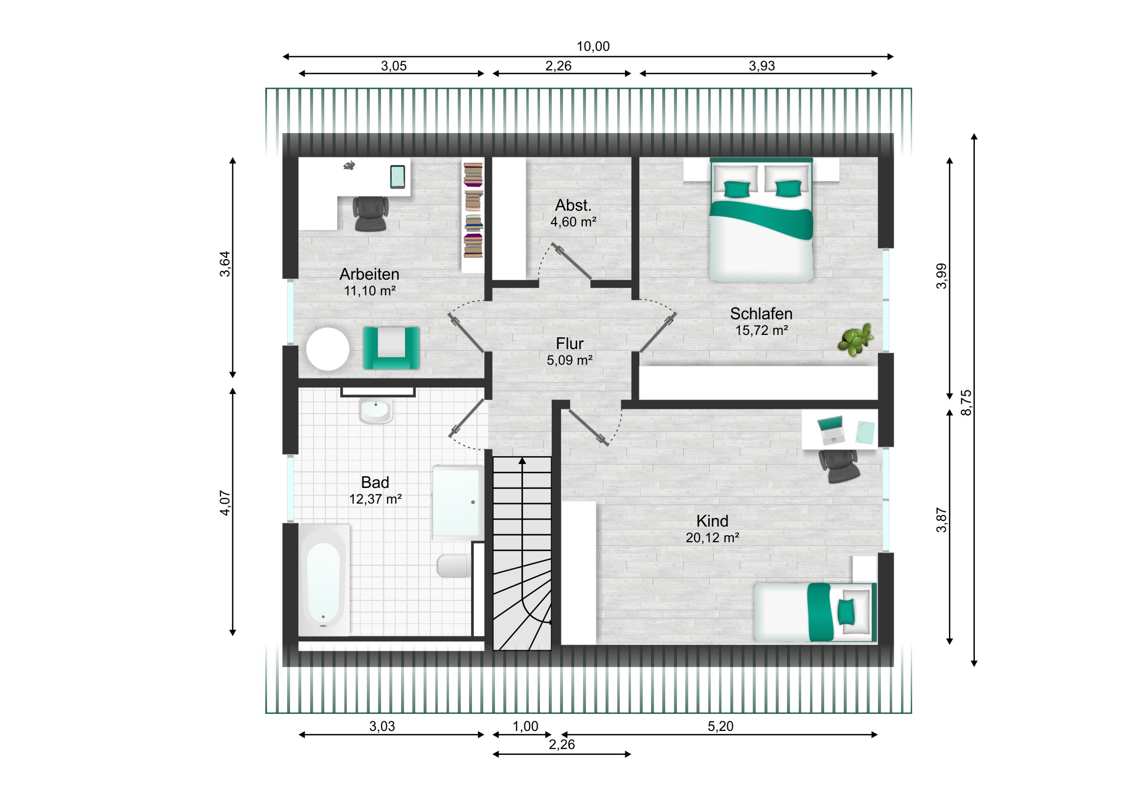
Über die elegante Holzwangentreppe gelangt man ins Dachgeschoss, das für zusätzlichen Raumkomfort angepasst wurde. Der Rohdrempel wurde auf 1,40 m erhöht, wodurch spürbar mehr Stell- und Nutzfläche entstanden ist. Besonders beeindruckend ist das über 20 m² große Kinderzimmer – ein wahres Paradies für kleine und große Entdecker. Ein separates Arbeitszimmer, ein Schlafzimmer, ein weiterer Abstellraum sowie das geräumige Familienbad komplettieren das Dachgeschoss auf ideale Weise.

Ein liebevoll geplantes Zuhause, das perfekt auf die Bedürfnisse von Familie F. zugeschnitten ist.

Besonderheiten

  • Rohdrempelerhöhung auf 1,40 m
  • geschlossene Küche mit Schiebetür
  • Abstellkammer im Dachgeschoss

Eckdaten im Überblick

  • Baujahr: 2024
  • Nettoraumfläche: 143 m²
  • Baustoff: Thermo 2+
Hauskategorie Einfamilienhaus Coburg

Einfamilienhaus Coburg

Flexibles Wohnen auf höchstem Niveau, das Einfamilienhaus Coburg mit Raum für individuelle Wünsche.

Einfamilienhaus Coburg

Ihre Nachricht an uns

Nutzen Sie unser Kontaktformular, um uns schnell und einfach eine Nachricht zu senden.

Wir freuen uns über Ihr Interesse und auf Ihre Nachricht, die wir im Rahmen unserer Sprechzeiten schnellstmöglich beantworten werden!